视频在线观看一区I国产在线高清I欧美在线一二区I日韩欧美精品在线视频I日日躁你夜夜躁你av蜜I免费观看日韩avI欧美日韩一级久久久久久免费看

推拉窗系列 平開窗系列 平開門系列 斷橋隔熱系列 幕墻系列 通用型材系列

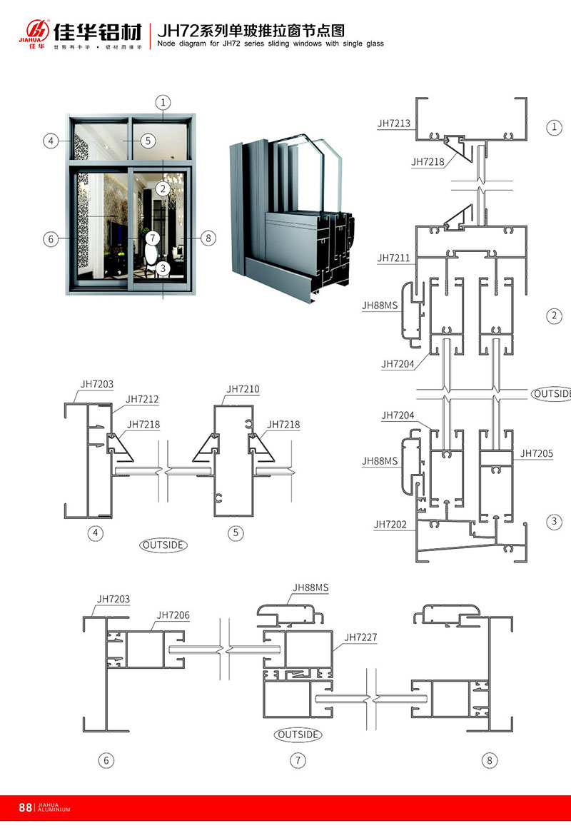
JH72

當前位置: 佳華鋁型材 > 產品展示 > 推拉窗系列

鋁型材規格型號:JH72

鋁型材規格型號:JH72

全國服務熱線:4000189233
JH72
<

1頁 / 共

>

應用實例Application case

相關產品Related Products

Top

QQ客服

400-0189-233